Skip to content
  • Industrial/Warehouse
  • For Lease
  • Print

50 Letitia Street

North Hobart TAS 7000

$62,000 plus Outgoings & GST

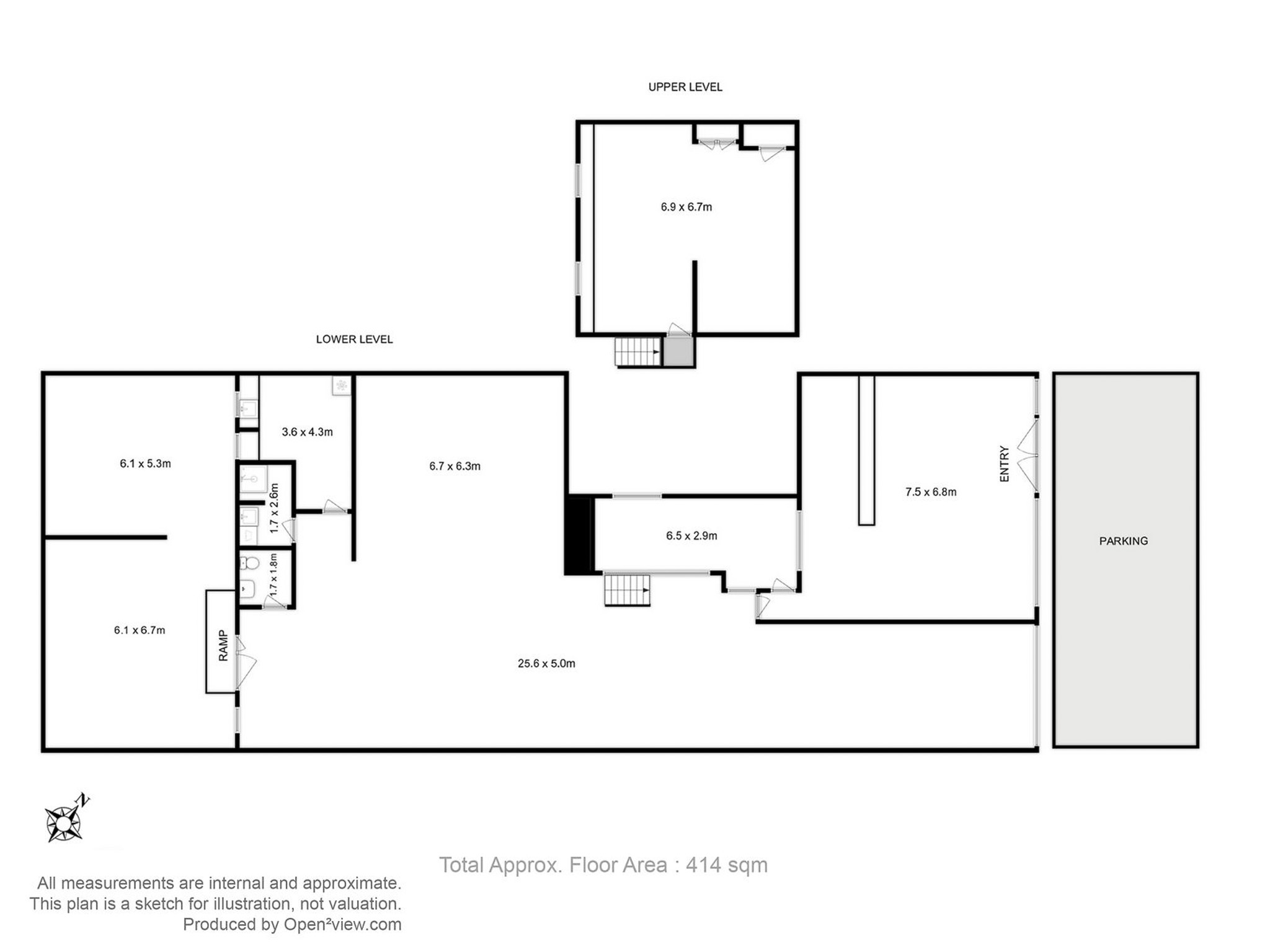
Showroom, Office & Workshop in Prime Location

Elders Commercial is pleased to present for lease 50 Letita Street, North Hobart. This well-configured property offers showroom frontage, workshop/warehouse space and a two-level office suited to a range of industrial, service, and trade-based uses.

Offering 414 sqm* of floor area with concrete floor construction, the property features automatic roller door access, three-phase power, kitchenette, bathroom amenities, offices/boardroom and two car spaces*.

Key features include:
• 414 sqm* floor area
• Showroom, warehouse, offices, kitchenette & bathroom
• Automatic roller door access
• On-site parking

Strategically located offering excellent street frontage on a busy street, this is a rare opportunity.

For further information or to arrange an inspection, please contact George Burbury on 0408 333 523.

*Approximate

Features

General Features

  • Land Area: 506sqm
  • Commercial Type: Industrial/Warehouse
  • Building Area: 414sqm
  • Zoning: Light Industrial

Elders Real Estate Hobart

Enquire about 50 Letitia Street, North Hobart, TAS, 7000

Property guides and resources

Rethinking the Spare Bedroom

Transform that forgotten space into something meaningful and full of life If…
Read more

Elders Shines at Real Estate Institute Awards

Elders Real Estate has had a sensational run at the 2025 Real…
Read more

Affordability and Lifestyle Making Gippsland a Destination in Demand

New figures indicate that the Gippsland property market is gaining rapid momentum,…
Read more