Skip to content

12 Salamanca Square

Battery Point TAS 7004

EOI Closing Thursday 16th April 2026 @ 4pm (AEST)

Salamanca Hospitality Institution

12 Salamanca Square offers a rare opportunity to secure a fully leased retail investment in one of Hobart’s most prominent waterfront precincts. The property occupies a prime sheltered corner position within Salamanca Square, benefiting from strong daily foot traffic and consistent demand from retail, hospitality and tourism activity.

Leased to Machine Laundry Café on a secure five year term, the asset provides reliable income supported by annual Consumer Price Index reviews. With its strategic location, established tenant and proven long term demand, this property presents a compelling opportunity for investors seeking stability in a tightly held commercial precinct.

• Prime “Book end” position in the heart of Salamanca Square with excellent visibility and exposure.
• 100% leased investment with a long standing hospitality tenant, Machine Laundry Café.
• Secure 5 year renewed lease term with fixed annual increases linked to the CPI.
• Net income of $87,903 per annum plus outgoings and GST.
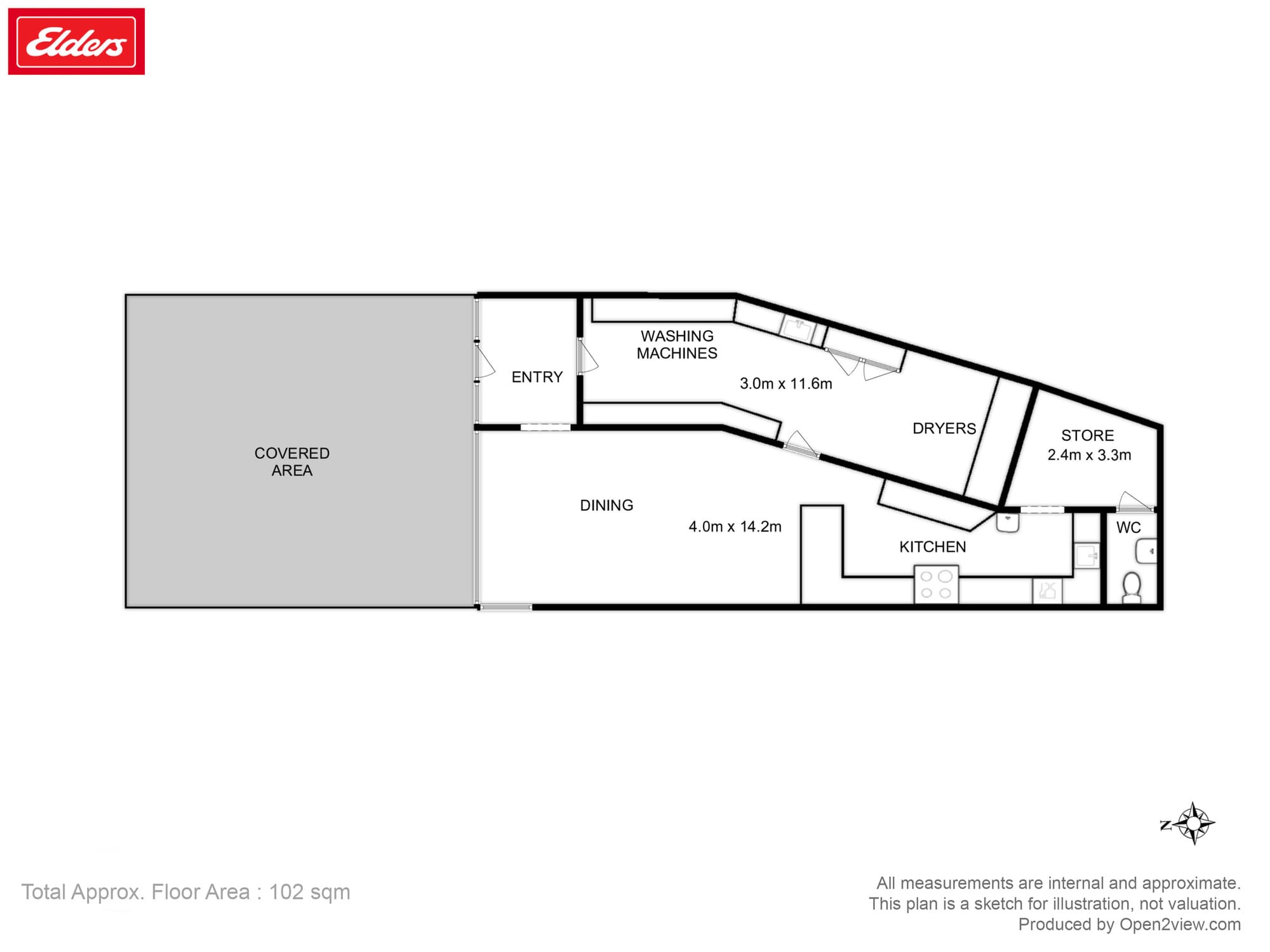
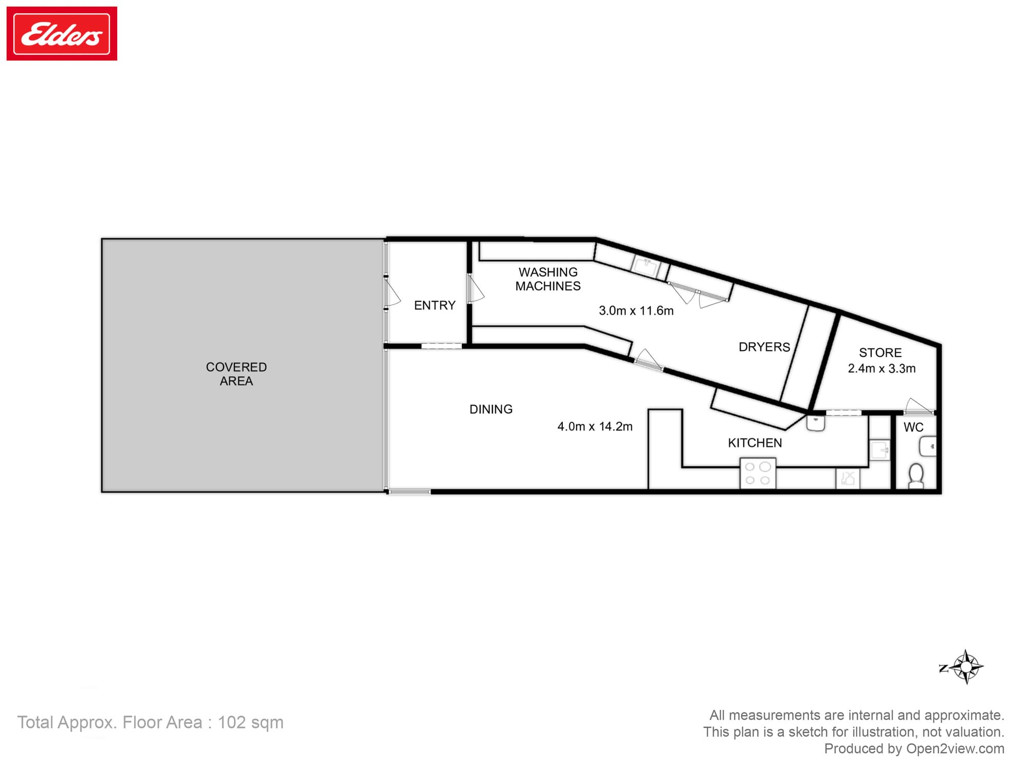
• Strata offering with 98 square metres of building area plus outside seating totalling 142 square metres of strata area.

The property is for sale by Expressions of Interest closing Thursday 16th April 2026 at 4pm (AEST).

For further information or to arrange an inspection, please contact Scott Newton or George Burbury.

*Approximate

Features

General Features

  • Land Area: 142sqm
  • Commercial Type: Retail
  • Building Area: 132sqm
  • Zoning: Particular Purpose

Can I afford 12 Salamanca Square?

Whether you’re a first-time buyer, looking for your next home, or considering upgrading or downgrading, Elders Finance can unlock the doors to the right finance option for you and get you into the home of your dreams.

Calculators

Elders Real Estate Hobart

Enquire about 12 Salamanca Square, Battery Point, TAS, 7004

Property guides and resources

Simple Ways to Refresh Your Home for the Cooler Months

There’s something about this time of year that invites a reset. After…
Read more

Showcase Autumn 2026 – Now Available

In this year’s Autumn Showcase collection, we bring together exceptional listings from…
Read more

Regional vs Capital: Where Property Returns Are Stronger in 2026

It’s no secret that the Australian property market is no longer moving…
Read more