Skip to content

124 Elizabeth Street

Hobart TAS 7000

Offers over $1.2 million

Fully Leased Ground Floor Retail with Residential Upside

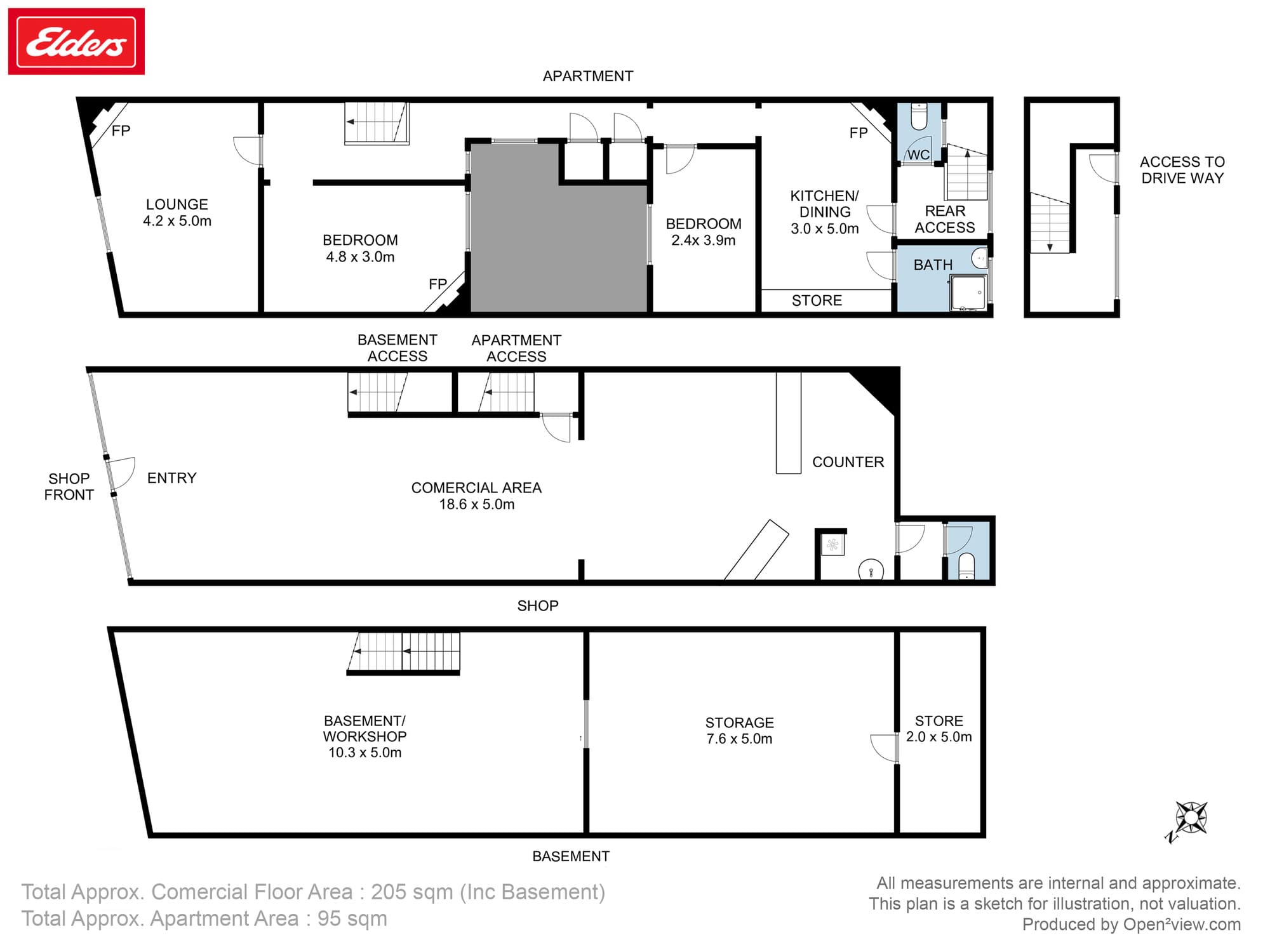
124 Elizabeth Street presents a rare opportunity to secure a character filled mixed use building in Hobart’s thriving CBD fringe. Just two blocks from the Elizabeth Street Mall, the property enjoys exceptional exposure, strong pedestrian activity and proximity to UTAS, cafés, retailers and government services. Featuring a fully leased ground floor retail tenancy to an iconic local retailer, generous basement, and flexible first floor accommodation, the building offers appealing versatility for investors and future occupiers^.

With its heritage charm, solid lease covenant, 1st floor residential flexibility and its position within a tightly held commercial strip, this is a scarce Midtown offering suited to those seeking long term income and strategic growth potential.

The property is available to purchase by offers over $1.2 million.

Please contact George Burbury or Liam Coyle for further information or to arrange an inspection.

^STCA

Features

General Features

  • Land Area: 119sqm
  • Commercial Type: Retail
  • Building Area: 119sqm
  • Zoning: Central Business

Can I afford 124 Elizabeth Street?

Whether you’re a first-time buyer, looking for your next home, or considering upgrading or downgrading, Elders Finance can unlock the doors to the right finance option for you and get you into the home of your dreams.

Calculators

Elders Real Estate Hobart

Enquire about 124 Elizabeth Street, Hobart, TAS, 7000

Property guides and resources

The Easter Slowdown: How to Recharge Your Home and Mind

There’s something about Easter that feels different. It doesn’t carry the same…
Read more

From Growth to Income: Why Australian Investors Are Turning to Regional Commercial Property

For decades, Australian property investment has been built on a simple idea:…
Read more

How AI is Changing Home Renovation

Not long ago, home inspiration meant flipping through magazines, saving Instagram posts,…
Read more