Skip to content

74-76 Elizabeth Street

Hobart TAS 7000

Contact Agent

Fully leased CBD trophy with 5.2 year* WALE

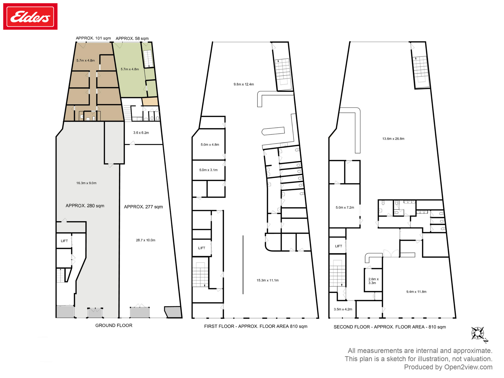
Elders Commercial is proud to offer to market this fully leased, high-profile commercial asset in the heart of Hobart’s CBD. Located just 30 metres from the Elizabeth Street Mall, the property benefits from dual street frontages and a commanding position in the city’s premier commercial and retail precinct. The asset comprises six tenancies across three levels and is anchored by nationally significant infrastructure tenant Marinus Link and hospitality operator The Workers Club.

Recent capital works include a foyer refurbishment and lift upgrade, with high-grade fitouts delivered for both upper-floor tenants in recent years. With a diversified income stream and strong tenant profile, the property delivers immediate income along with longer-term potential for rental uplift or future redevelopment**, all within one of the most supply-constrained CBD office markets in the country.

Investment Highlights
• Fully leased CBD flagship asset
• WALE of 5.2 years* (as at October 2025)
• Building Area of 2,336 sqm* across three fully leased levels
• Anchored by Marinus Link and The Workers Club with A-grade fitouts
• Recently upgraded building services, including refurbished foyer and lift
• Zoned Central Business under the Tasmanian Planning Scheme - Hobart
• Prime location just 30m* from the Elizabeth Street Mall with strong foot traffic
• Net passing income of $535,544* + GST

Method of Sale: Expressions of Interest closing Thursday 6th November 2025 at 4pm (AEDT).

For further information or to arrange an inspection, please contact George Burbury or Scott Newton.

*Approximate.
**STCA

Features

General Features

  • Land Area: 870sqm
  • Commercial Type: Retail
  • Building Area: 2,336sqm
  • Zoning: Central Business

Can I afford 74-76 Elizabeth Street?

Whether you’re a first-time buyer, looking for your next home, or considering upgrading or downgrading, Elders Finance can unlock the doors to the right finance option for you and get you into the home of your dreams.

Calculators

Elders Real Estate Hobart

Enquire about 74-76 Elizabeth Street, Hobart, TAS, 7000

Property guides and resources

Elders Shines at Real Estate Institute Awards

Elders Real Estate has had a sensational run at the 2025 Real…
Read more

Affordability and Lifestyle Making Gippsland a Destination in Demand

New figures indicate that the Gippsland property market is gaining rapid momentum,…
Read more

Tasmanian Commercial Market Wrap – October 2025

October was another strong month for Tasmania’s commercial property market, with transaction…
Read more