Skip to content

Cedar Cottages / 245 Roslyn Avenue

Blackmans Bay TAS 7052

Contact agent

"Cedar Cottages" - Peaceful, coastal retreats in popular Blackmans Bay

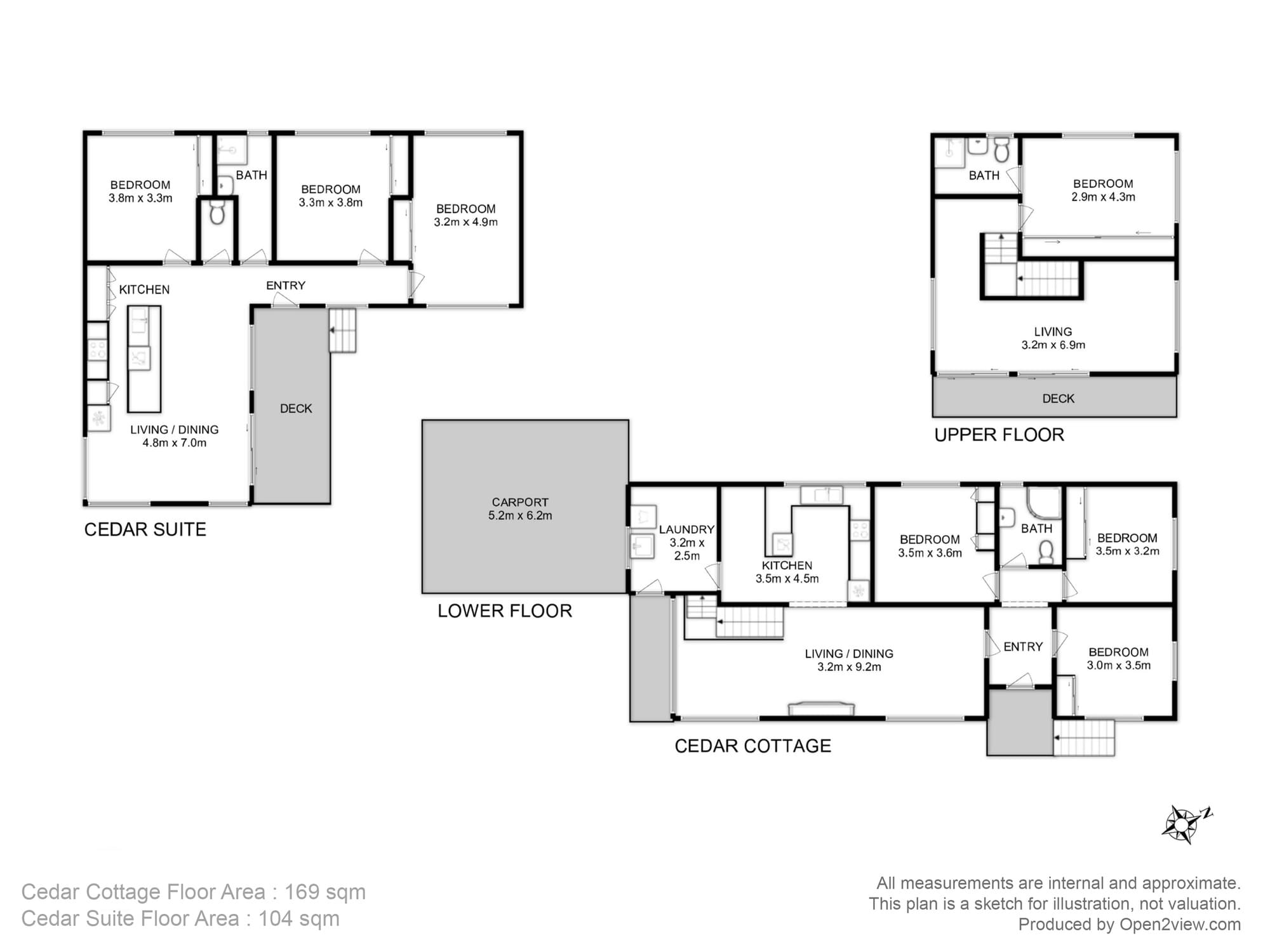
Elders Commercial is pleased to present to market "Cedar Cottages", self contained cottages, in a tranquil location just minutes from Blackmans Bay Beach.

A highly successful business run under management since 2005. All cottages are in excellent condition, with modern facilities, on-site parking with a total sleeping capacity of 37.

The properties include 3 cottages on 1 Title (1,009 sqm*) at 245 Roslyn Avenue together with 2 cottages on 1 Title (718 sqm*) at 14 Garnett Street, to be sold together or in one line.

Alternatively, the cottages could be bought for residential use with strata title possibilities^.

Cedar Cottages is offered for sale by Expression of interest closing Thursday 23rd April, 2026 at 4pm (AEST).

*Approximate
^STCA

Features

General Features

  • Land Area: 1,727sqm
  • Commercial Type: Hotel/Leisure
  • Building Area: 273sqm
  • Zoning: Residential

Can I afford Cedar Cottages / 245 Roslyn Avenue?

Whether you’re a first-time buyer, looking for your next home, or considering upgrading or downgrading, Elders Finance can unlock the doors to the right finance option for you and get you into the home of your dreams.

Calculators

Elders Real Estate Hobart

Enquire about Cedar Cottages/245 Roslyn Avenue, Blackmans Bay, TAS, 7052

Property guides and resources

Q1 2026 Property Market Review: Where Australia Stands and What Comes Next

As the first quarter of 2026 wraps up, the Australian property market…
Read more

Why the Market Reawakens After Easter

Every year, the Australian property market seems to follow a familiar rhythm.…
Read more

Tasmanian Commercial Market Wrap – March 2026

Tasmania’s commercial property market recorded solid transactional activity throughout March, with a…
Read more